Layout Casa Anna
General
The holiday home for 4 persons has a bathroom and two bedrooms. The holiday home is equipped with a TV (international channels) and a fireplace. In addition there is a barbecue, a terrace and a garden. The badroom is equipped with a shower.
The holiday home has a washing machine and a freezer.
Kitchen
The kitchen is equipped with a dishwasher and an oven.
Detailed information
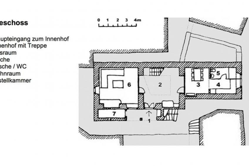
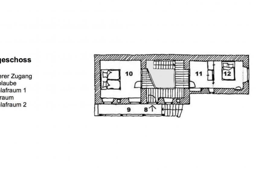
Our holiday home "Casa Anna" is a simple but cosily furnished "Rustico" in Avegno di Dentro, a small settlement of traditional stone houses in the front area of the Maggia Valley, Canton Ticino, Switzerland.On the ground floor there is a living room with a seating area and open fireplace, a dining area with a modern kitchen equipped with a hob, oven, fridge and dishwasher, and a bathroom with a shower cubicle, washbasin, WC and washing machine, all grouped around a small courtyard with a garden table and open fireplace. This courtyard gives the house its very special character, all rooms open onto this area with large French windows, in the middle of the house you can stay and move around in the open air without being disturbed by the neighbours, an open staircase leads from the courtyard to the upper floor with the two bedrooms and the small but very sunny vine arbour above the entrance. The house is in a very quiet location and is within walking distance of the bathing facilities on the Maggia. But if the peace and quiet is too much for you, Lake Maggiore and the well-known holiday resorts of Ascona and Locarno are only a stone's throw away. After the Bellinzona Süd exit, follow the signs for "Locarno - Lago Maggiore". At the end of the Locarno bypass tunnel, continue in the direction of "Vallemaggia - Centovalli" and then turn right into Vallemaggia at Ponte Brolla. Avegno is the first village after Ponte Brolla, drive past the village, you will now see the "Mai Morire" grotto on the right-hand side, turn right here and drive back along the old village road. You will now come to the part of the village called "Avegno di Dentro", here in this small group of houses you will find our holiday home "Casa Anna", after booking you will receive a detailed brochure of our holiday home, including exact directions with sketch.
Other sports and leisure activities: The Maggia Valley is a paradise for hikers!
Excursions: The natural Maggia Valley with its various side valleys, as well as the Centovalli and Verzasca valleys, Ascona and Locarno offer visitors a wide range of excursions and exciting journeys of discovery. But the Italian part of Lake Maggiore, with its Mediterranean atmosphere, islands, picturesque villages and small towns, will also enrich your holiday, and not just in culinary terms.
Other living room furnishings (living room 1): Sitting area with Swedish stove, TV
Other bedroom furnishings (bedroom 1): Bed size 180 x 200 cm
Sports facilities in the surrounding area: mountaineering, golf course, climbing, mountain biking, cycling tours, rafting, skiing (alpine), diving, sailing
Location description: The holiday home "Casa Anna" is located in the "di Dentro" district of the municipality of Avegno in the front part of the Maggia Valley and is just 7 km from the famous holiday resorts of Ascona and Locarno.
Basic information
- Pets allowed: 1
- allowed size of dogs: medium (30 to 60 cm)
- Year of the last complete renovation : 2024
- not observable from the street
- non-smoking
- Number of bedrooms: 2
- Number of bathrooms: 1
Top features
- air conditioning: no
- heating: Everywhere
- underfloor heating: Everywhere
- terrace
- garden: For sole use
Sleeping
bedroom 2
- double bed (1.80 m width)
- bedroom is dimmable
bedroom 4
- double bed (1.80 m width)
- bedroom is dimmable
in the living area
- bedroom is dimmable
Bathroom
bathroom 2
- shower
- basin
- toilet
- hair dryer
- daylight
Guest toilet (or WC)
- toilet
Cooking/Living
- coffee machine: espresso coffee pot
- fridge/freezer: freezing compartment, fridge
- stove: stove
- kitchen hood
- oven
- toaster
- electric kettle
- dishwasher
- size of kitchen: 11 m²
- number of dining tables: 1
- number of seats: 5
- number of living rooms: 1
- fireplace
- stove
Entertainment
- TV: TV, satellite TV
Utility
- washing machine: For communal use in the building
- vaccum cleaner
Outside area
- outdoor furniture
- grill/barbecue: grill/barbecue
Surroundings
- view: mountain, garden, forrest, lawn
- Nearest town centre: 7,0 km
- Grocery store: 500 m
- restaurant: 200 m
- train station: 3,0 km
- motorway: 29,0 km
- lake: 9,0 km
- bicycle hire: 1 m
Distinctive features
- located in the middle of the countryside
In the area from Casa Anna
-
This holiday home -
Holiday homes in the neighborhood
Rates and availability
To check the exact price, select an arrival date below. You may see possible extra costs or optional on-site costs below the calendar.
In the calendar below, you can see whether Casa Anna in Avegno Gordevio is available. The remaining available arrival dates are marked with dark green. The light green highlighting indicates the dates when you can stay in this home. The dates marked in red indicate that the property is already occupied, while gray-marked dates indicate that their availability is not yet known.
- Available
- Arrival possible
- Occupied
- Not yet known
The list below shows the available periods and the prices. You can easily make your reservation using the 'Book now' button over our secure connection; all your information will be handled carefully.
| Length of stay | Arrival | Departure | Price | ||
|---|---|---|---|---|---|
On-site costs
| Compulsory | |
|---|---|
| Final cleaning (basic cleaning is always carried out by the guest) | CHF 120 (01-01-2024 - 31-12-2099) |
| Local tax | CHF 3,25 per person (01-01-2026 - 31-12-2026) |
| Including | |
|---|---|
| Pet (max. 1 pet) | |
| Power costs | |
Payment terms and -periods
After the booking confirmation, you must make a deposit equal to 20% of the total rental amount within 10 days. The second payment must be paid no later than 42 days before you leave. If you leave within six weeks, you must pay down the full amount immediately.
per week
- 4
- 2
- 0
Pay via
Hassle-free reservations
If you have any questions about this holiday home or need help with making a reservation, please feel free to contact us.
Ask question