





























Layout BF-53JGJ
General
The holiday home for 6 persons has a bathroom and three bedrooms and is equipped with a double bed and four single beds. The holiday home is equipped with a radio, a fireplace, a TV, a stereo and a heather. In addition there is a barbecue and a set of garden furniture and there are two terraces. You can park your car on a parking lot. The badroom is equipped with a shower and a toilet.
The holiday home has a washing machine, a fridge-freezer, two freezers and a Internet connection (wireless).
Children
Especially for (young) children, there is a cot and a high chair.
Kitchen
The kitchen is equipped with a stovetop, a stove, a coffee maker, a microwave and a dishwasher.
Detailed information
Holiday house on a beautiful mountain plot with panoramic views of the Atlantic Road and the surrounding areas. The holiday house is located in quiet surroundings with only two other private holiday homes as neighbors. The holiday home has large windows for contact with the nature outside. Spacious and large seating area in the living room. Wood burning stove. Dish with Astra1 for German and European channels and CanalDigital for Norwegian and Nordic TV channels. Wireless internet for surfing. From the kitchen, there access to the balcony and the wonderful view. One bedroom with a single bed with a width of 120 cm. Stairs to the large and spacious loft with the two folding single beds. Swimming possibilities: Shallow sandy beach by Gådalsvatnet, 800 meters from the holiday home. 500 meters to the nearest hiking trail. 10 km to Eide, with shopping center and restaurant. 18 km to Farstadsanden and hiking trail out to Nordneset Lighthouse. The large sandy beach, Farstadsanden, is known for its good conditions for swimming, kiting, and windsurfing. Distance to boat and covered fish filleting space: 5 km. Boats for rent in the marina: 1x 21 foot Øien 620F with 60 HP Honda, Gps / chart plotter / echo sounder and 8 pole holders. 1x 17 foot Cavalier with 20 HP Honda. 1x 16 foot Silver Viking with 15 HP Honda. Life jackets included.
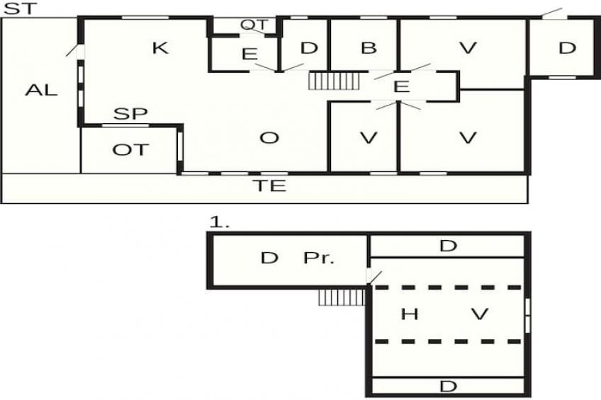
Layout
- Garden furniture
- BBQ
- Parking
- Cooker
- Electric
- Filter
- Living/bed room (TV (satellite, german television channels, norvegian TV channels , fireplace, radio, stereo unit)
- 7 m2
- Children's bed
- 9 m2
- 6 m2
- Floor heating
- Shower
- Toilet
- 11 m2
- Electric
- 8 m2
- 22 m2
In the area from BF-53JGJ
On 10 kilometer of BF-53JGJ you will find one or more restaurants. There is a mall nearby, in 10 kilometer. You can also relax, because near BF-53JGJ in Hustadvika you can go to the beach.
- Beach (800 m)
- Restaurant (10 km)
- Supermarket (10 km)
-
This holiday home
-
Holiday homes in the neighborhood
Rates and availability
To check the exact price, select an arrival date below. You may see possible extra costs or optional on-site costs below the calendar.
In the calendar below, you can see whether BF-53JGJ in Hustadvika is available. The remaining available arrival dates are marked with dark green. The light green highlighting indicates the dates when you can stay in this home. The dates marked in red indicate that the property is already occupied, while gray-marked dates indicate that their availability is not yet known.
- Available
- Arrival possible
- Occupied
- Not yet known
The list below shows the available periods and the prices. You can easily make your reservation using the 'Book now' button over our secure connection; all your information will be handled carefully.
Length of stay | Arrival | Departure | Price |
---|
On-site costs
Compulsory | |
---|---|
Bed linen | Possible to rent, NOK 125 per Stay |
Deposit | NOK 1.500 |
Electricity | NOK 2 per kWh |
Optional | |
---|---|
Bath towels | Bring your own |
Including | |
---|---|
Final Cleaning |
Payment terms and -periods
A deposit equivalent to 30% of the total amount and any cancellation insurance shall be made within 7 days. The second payment shall be made no later than six weeks before departure.
If you pay in two installments, you will receive an email with a reminder to pay the second installment one week before its term expires. If you leave within six weeks, you must make payment in one installment. When leaving within 14 days, you must make payment in one installment via credit card or PayPal.
per week
Based on22 reviews
- 6
- 3
- 0
Pay via
Hassle-free reservations
If you have any questions about this holiday home or need help with making a reservation, please feel free to contact us.
Ask question