Layout Jolmalompolo
General
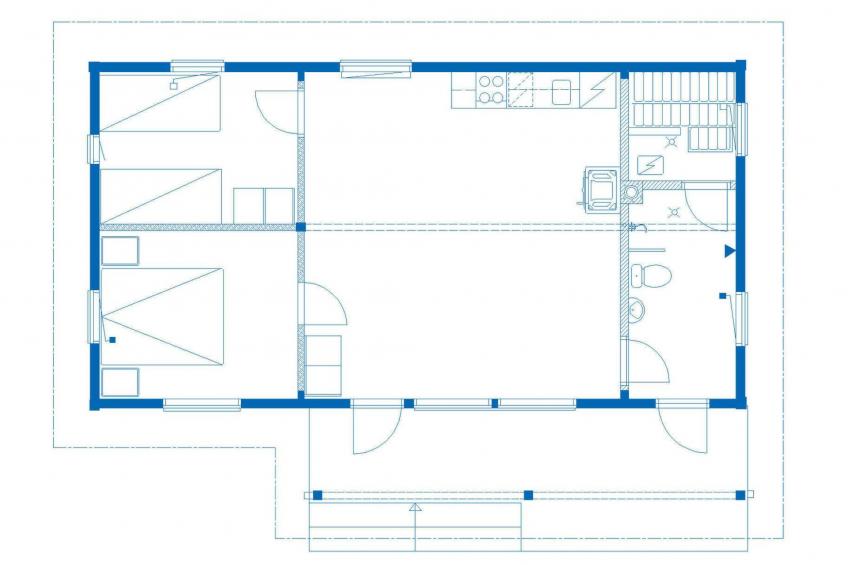
The holiday home for 4 persons has a bathroom and two bedrooms. The holiday home is equipped with a TV and a fireplace. In addition there is a sauna. The badroom is equipped with a shower.
The holiday home has a freezer.
Kitchen
The kitchen is equipped with a dishwasher, an oven and a microwave.
Detailed information
Modern cabin with many amenities by a lake. Very peaceful place, no visual contact to the neighbors. Only 20 m to the beach!
43 km to the southeast from Pello, 60 km to the northwest from Rovaniemi, lake Jolmalompolo 20 m, deep beach, sand bottom, rowing boat and pier. The distance to the opposite shore is 50 m, the length of the lake is 2.2 km. From lake Jolmalompolo, there is a water connection to the larger lake Raanujärvi, distance 600 m.
The cabin is built of planed logs, completed in 2022. Living room/kitchen, 2 bedrooms, both with 2 beds, sauna and washroom/WC.
Campfire site by the lake.
Dog is allowed, pet fee will be applied. Cat is not allowed. Lake Jolmalompolo and lake Raanujärvi are well suited for fishermen. Fish species in the lake: pike perch, pike and perch. Boat ramp at lake lake Raanujärvi 1.8 km. From the cabin you can also easily reach the large lakes of Ylitornio and Pello, such as Iso-Vietonen and Miekojärvi. Tornionjoki salmon fishing spots 50 km.
State owned small game hunting area is easily accessible for hunters, the destination 2609 (www.eraluvat.fi).
Ski resort Ritavalkea in Pello 40 km, ski resort Ounasvaara in Rovaniemi 60 km. The Arctic Circle, Santa Claus Village and Santapark 70 km.
Frisbee golf course 10 km (Airijärvi). Palojärvi resort 17 km (dance events in summer).
In the area from Jolmalompolo
-
This holiday home -
Holiday homes in the neighborhood
Rates and availability
To check the exact price, select an arrival date below. You may see possible extra costs or optional on-site costs below the calendar.
In the calendar below, you can see whether Jolmalompolo in Ylitornio is available. The remaining available arrival dates are marked with dark green. The light green highlighting indicates the dates when you can stay in this home. The dates marked in red indicate that the property is already occupied, while gray-marked dates indicate that their availability is not yet known.
- Available
- Arrival possible
- Occupied
- Not yet known
The list below shows the available periods and the prices. You can easily make your reservation using the 'Book now' button over our secure connection; all your information will be handled carefully.
| Length of stay | Arrival | Departure | Price | ||
|---|---|---|---|---|---|
On-site costs
| Optional | |
|---|---|
| Pet | € 41,60 (17-11-2022 - 30-04-2026) |
| Including | |
|---|---|
| Final cleaning (basic cleaning is always carried out by the guest) | |
| Laundry (initial supply of bed linen and towels) | |
Payment terms and -periods
After the booking confirmation, you must make a deposit equal to 20% of the total rental amount within 10 days. The second payment must be paid no later than 42 days before you leave. If you leave within six weeks, you must pay down the full amount immediately.
for a weekend
Based on 1 review
- 4
- 2
- 0
Pay via
Hassle-free reservations
If you have any questions about this holiday home or need help with making a reservation, please feel free to contact us.
Ask question