Layout Hus til 4+2 personer STANDARD
General
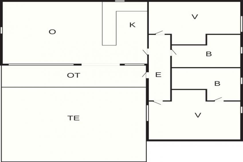
The holiday home for 6 persons has two bathrooms and two bedrooms and is equipped with four bunk beds and two single beds. The holiday home is equipped with a heather and a TV. In addition there is a terrace. You can park your car on a parking lot. The badroom is equipped with two showers and two toilets.
The holiday home has a Internet connection (wireless) and a fridge.
Kitchen
The kitchen is equipped with two dishwashers, a stove and a coffee maker.
Detailed information
The property, set in the scenic surroundings of the Hindsgavl Nature Reserve, offers a peaceful retreat with direct access to both water and forest. Here, you can enjoy free water park access for a fun-filled vacation. Guests can choose from a range of holiday homes with varying capacities: from 2-person apartments with kitchenettes to larger units accommodating up to 6 people. Each unit is well-equipped with essential amenities, including a living room, TV, and bathrooms. The homes are available in two categories—Premium, featuring modern furnishings and recent renovations, and Standard, which includes basic furnishings and equipment. The holiday homes are privately owned, and the layout of each can vary slightly. For added convenience, there are outdoor terraces, and while there’s no private parking by the homes, ample parking is available on-site. Located just a short distance from the charming town of Middelfart, the property is an excellent base for those looking to explore both nature and city life. Visitors can easily access a variety of activities including cycling, hiking, and water-based leisure. The town offers a wide range of shops, dining options, and attractions throughout the year, making it an attractive destination in both high and low seasons. For those who enjoy self-catering, the center’s holiday homes are equipped with kitchens and dining areas, allowing guests to prepare their own meals.
Layout
- Terrace
- Parking
- Internet Access DSL
- Kitchen (cooker (electric, coffee machine, dishwasher, fridge (+ freezer)
- Living/bed room (TV)
- 2x single bed
- 4x bunk bed
- Washbasin
- Shower
- Toilet
- Washbasin
- Shower
- Toilet
- Central
In the area from Hus til 4+2 personer STANDARD
On 200 meter of Hus til 4+2 personer STANDARD you will find one or more restaurants.
- Restaurant (200 m)
-
This holiday home -
Holiday homes in the neighborhood
Rates and availability
To check the exact price, select an arrival date below. You may see possible extra costs or optional on-site costs below the calendar.
In the calendar below, you can see whether Hus til 4+2 personer STANDARD in Middelfart is available. The remaining available arrival dates are marked with dark green. The light green highlighting indicates the dates when you can stay in this home. The dates marked in red indicate that the property is already occupied, while gray-marked dates indicate that their availability is not yet known.
- Available
- Arrival possible
- Occupied
- Not yet known
The list below shows the available periods and the prices. You can easily make your reservation using the 'Book now' button over our secure connection; all your information will be handled carefully.
| Length of stay | Arrival | Departure | Price | ||
|---|---|---|---|---|---|
On-site costs
| Compulsory | |
|---|---|
| Electricity | DKK 3,74 per kWh |
| Heating/Energy | DKK 0,85 per KWh |
| Water | DKK 120 per m3 |
| Optional | |
|---|---|
| Bath towels | Bring your own |
| Bed linen | Bring your own |
| Including | |
|---|---|
| Final Cleaning | |
Payment terms and -periods
A deposit equivalent to 30% of the total amount and any cancellation insurance shall be made within 7 days. The second payment shall be made no later than six weeks before departure.
If you pay in two installments, you will receive an email with a reminder to pay the second installment one week before its term expires. If you leave within six weeks, you must make payment in one installment. When leaving within 14 days, you must make payment in one installment via credit card or PayPal.
Based on 27 reviews
- 6
- 2
- 2
Pay via
Hassle-free reservations
If you have any questions about this holiday home or need help with making a reservation, please feel free to contact us.
Ask question