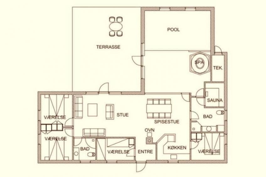
Layout BF-CZC59
General
The holiday home for 8 persons has two bathrooms and four bedrooms and is equipped with two double beds, two single beds and four bunk beds. The holiday home is equipped with a heather and a TV. In addition there is a swimming pool, a jacuzzi and a sauna. The badroom is equipped with two baths or showers and two toilets.
The holiday home has a washing machine, a Internet connection (wireless), a fridge and a tumble dryer.
Children
Especially for (young) children, there is a high chair and a cot.
Kitchen
The kitchen is equipped with a microwave and a dishwasher.
Detailed information
A refundable deposit might be charged closer to your check-in date. This deposit covers utilities consumed during your stay and any additional services that may be taken. The final amount will be adjusted based on actual meter readings, actual usage of extra services, and any remaining balance will be refunded within 21 days after checkout.
Layout
- High chair
- Air to air heatpump
- Internet Access DSL
- Kitchen (microwave, fridge (+ freezer, tumble dryer, washing machine)
- Living/bed room (TV)
- Double bed
- Double bed
- 4x bunk bed
- 2x single bed
- Bathtub or shower
- Washbasin
- Toilet
- Bathtub or shower
- Washbasin
- Toilet
- Dishwasher
- Cot
- Bubble bath (indoor, 4 persons)
- Indoor
- Electric
- Indoor
- 400 m2
In the area from BF-CZC59
There is a lake/open water less than 800 meter. You can also relax, because near BF-CZC59 in Ringkobing you can go to the water.
- Water (800 m)
-
This holiday home -
Holiday homes in the neighborhood
Rates and availability
To check the exact price, select an arrival date below. You may see possible extra costs or optional on-site costs below the calendar.
In the calendar below, you can see whether BF-CZC59 in Ringkobing is available. The remaining available arrival dates are marked with dark green. The light green highlighting indicates the dates when you can stay in this home. The dates marked in red indicate that the property is already occupied, while gray-marked dates indicate that their availability is not yet known.
- Available
- Arrival possible
- Occupied
- Not yet known
The list below shows the available periods and the prices. You can easily make your reservation using the 'Book now' button over our secure connection; all your information will be handled carefully.
| Length of stay | Arrival | Departure | Price | ||
|---|---|---|---|---|---|
On-site costs
| Compulsory | |
|---|---|
| Electricity | DKK 3,50 per kWh |
| Water | DKK 75 per m3 |
| Optional | |
|---|---|
| Bath towels | Bring your own |
| Bed linen | Bring your own |
| Including | |
|---|---|
| Final Cleaning | |
Payment terms and -periods
A deposit equivalent to 30% of the total amount and any cancellation insurance shall be made within 7 days. The second payment shall be made no later than six weeks before departure.
If you pay in two installments, you will receive an email with a reminder to pay the second installment one week before its term expires. If you leave within six weeks, you must make payment in one installment. When leaving within 14 days, you must make payment in one installment via credit card or PayPal.
Based on 28 reviews
- 8
- 4
- 2
Pay via
Hassle-free reservations
If you have any questions about this holiday home or need help with making a reservation, please feel free to contact us.
Ask question